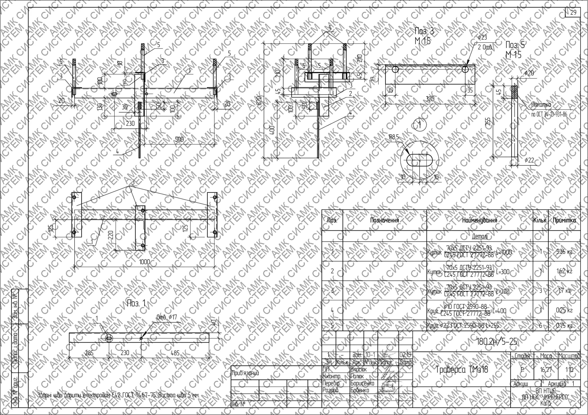
Траверса ТМз18
Категорія: Траверси високовольтні Т, ТМ
Траверса ТМз18 призначена для комплектації кутових проміжних опор серії КП10-1 з використанням віброваних стояків СВ105 заввишки 10,5 м.
Виготовляється відповідно до робочого креслення 180.2н/5-25 типового проєкту 180.2н. Застосовується для ліній СІП-3 напругою 6 та 10 кВ з ізольованими проводами.
Конструкція траверси забезпечує надійність кріплення, довговічність та безпечну експлуатацію кутових проміжних опор у мережах високовольтних електропередач.









