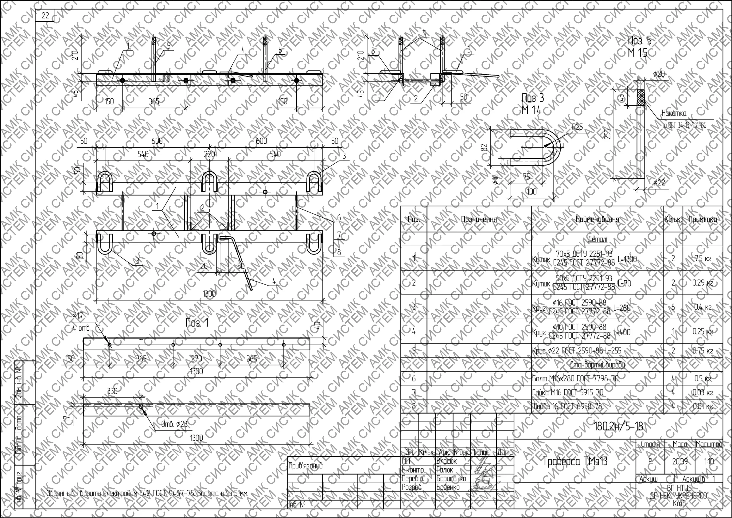
Траверса ТМз13
Категорія: Траверси високовольтні Т, ТМ
Траверса ТМз13 призначена для комплектації кутових анкерних опор серій КА10-1 та відповідних відвідних кутових опор ВКА10-1 на базі віброваних стояків серії СВ105.
Виготовляється згідно з робочим кресленням 180.2н/5-18 типового проєкту 180.2н і застосовується для ліній СІП-3 напругою 6 та 10 кВ з ізольованими проводами.
Траверса забезпечує надійне кріплення конструкцій, стійкість до механічних навантажень та довговічну експлуатацію високовольтних ліній електропередач.









