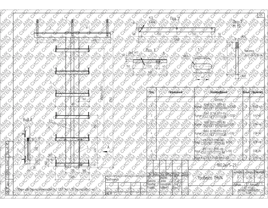
Траверса ТМз14
Категорія: Траверси високовольтні Т, ТМ
Траверса ТМз14 (робоче креслення 180.2н/5-21) призначена для комплектації збільшених по висоті проміжних опор серії ПП10-1 з використанням стояків СВ105-5, СК105-5 та СК120-6.
Застосовується для високовольтних ліній електропередач напругою 6 та 10 кВ з ізольованими проводами типу СІП-3 та AAsXSn.
Траверса використовується при перетині з інженерними спорудами, автомобільними дорогами, шляхопроводами на лініях, що проходять по прямій або з допустимими кутами повороту до 5° від осі магістралі.
Забезпечує надійне кріплення та безпечну експлуатацію ВЛЗ у складних умовах.









